Faisabilité règlementaire et Esquisse pour une maison familiale dans les Yvelines
Terrain 1800m²
Maison 230m² SP
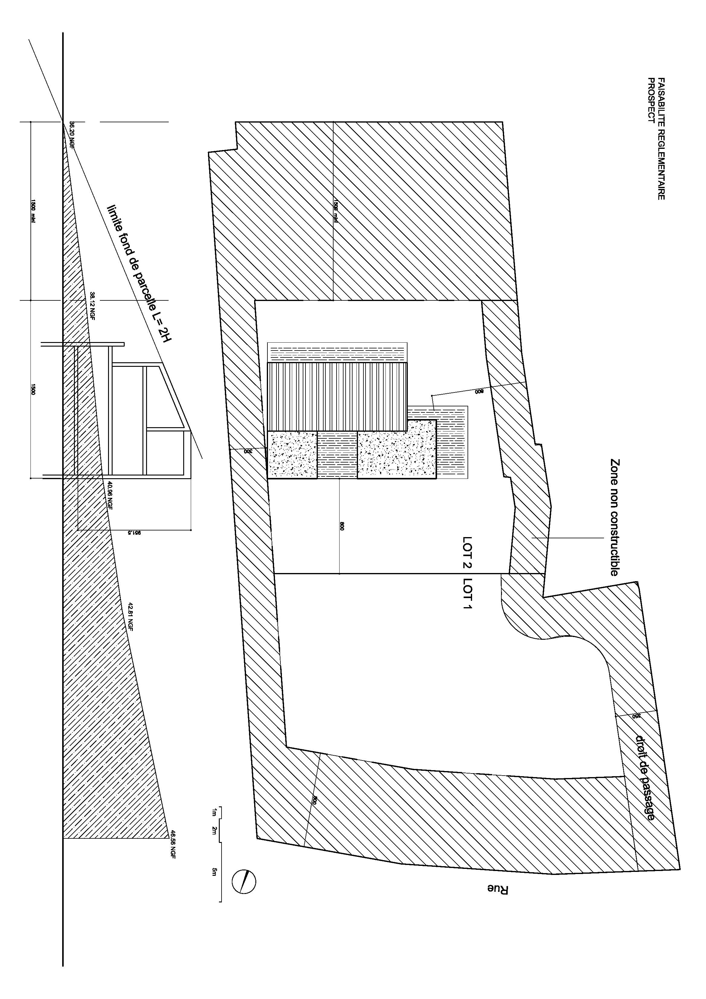
Sur un terrain destiné à recevoir 2 maisons en copropriété, le choix des futurs acquéreurs s'est porté sur le LOT 1, en "partie basse" de la parcelle. Le terrain en pente orienté Nord Sud se prête bien à la construction de 2 maisons profitant d'une vue dégagée, sans vis à vis et de la même orientation.



