DOUMER
Réhabilitation / Création de terrasse :
Réhabilitation 100m² SP
Terrasse 40m²
Localisation : Carrières sur Seine
Mission complète
Maître d’ouvrage privé
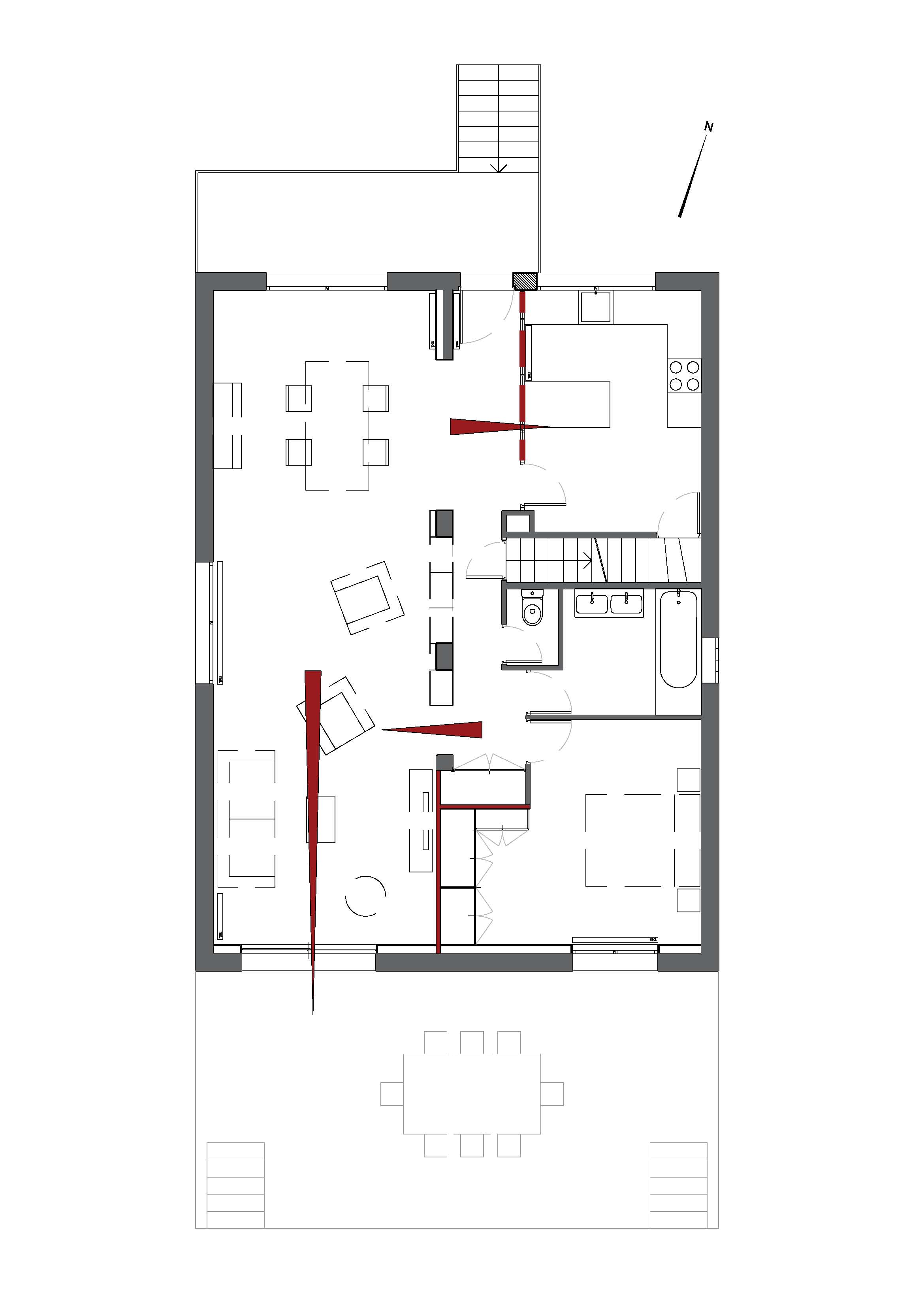
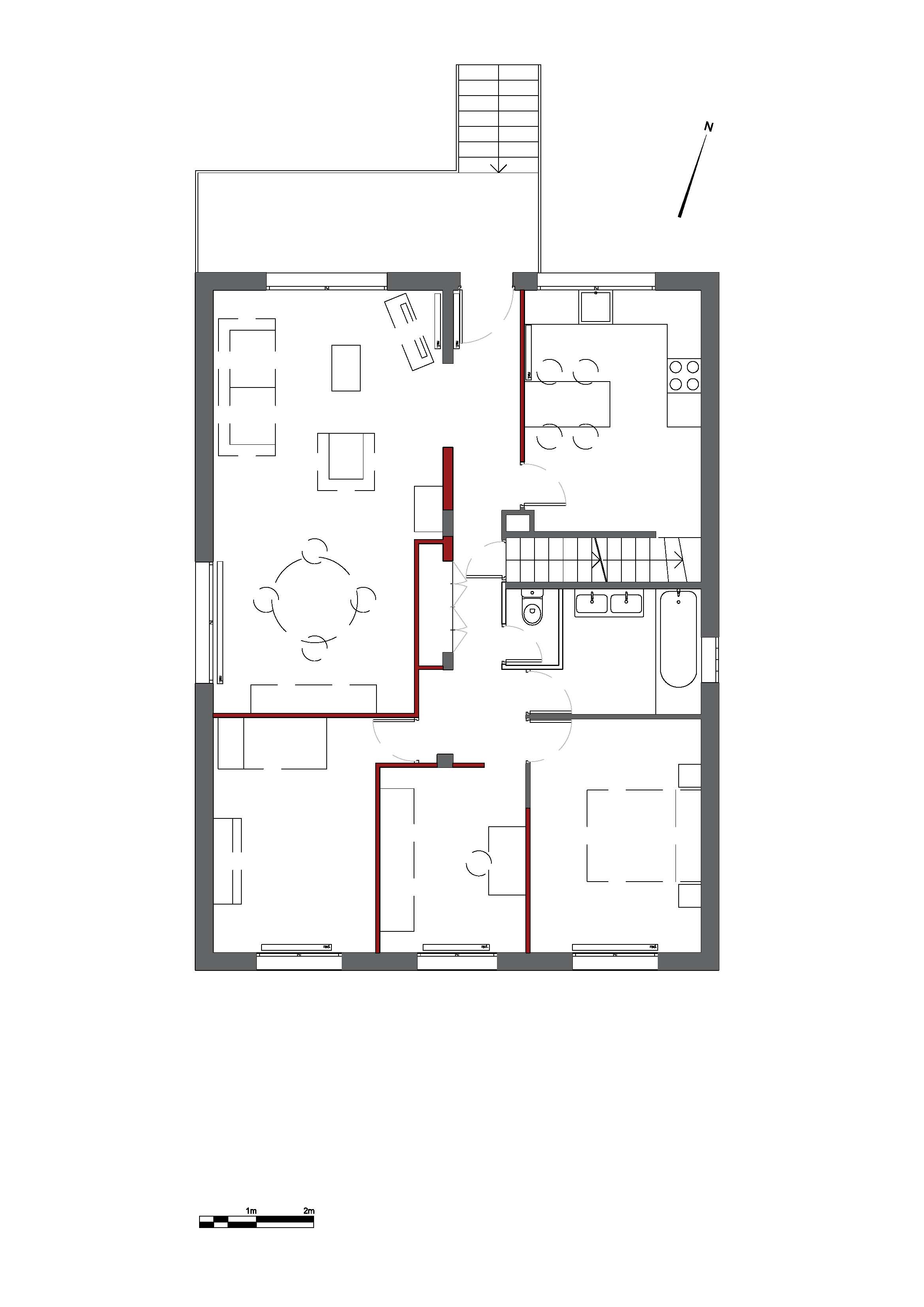
Cette maison des années 1970 composée d’un sous-sol semi-enterré, d’un RDC et d’un étage sous combles a évolué au fur et à mesure. D’abord seul le RDC était habitable, puis les combles ont été aménagés en chambres pour les enfants. Aujourd’hui deux pièces du RDC ont été supprimées pour agrandir le séjour et la chambre parentale, et le rendre traversant de façon à profiter de la vue dégagée vers le jardin. De plus, la cave en rez-de jardin a été aménagée en cuisine d’été ouvrant sur une terrasse. Ainsi, ce couple dont les enfants ont quitté la maison, peuvent profiter de grands volumes et recevoir la famille dans ces nouveaux espaces et profiter du jardin accessible de plein pied avec la cuisine d’été et la terrasse.
Ce projet a subi des désagréments liés aux problèmes sanitaires, décalage du démarrage des travaux, retard des menuiseries extérieures, … mais a force de patience et avec la bonne foi de tous, tout finit par s’arranger et les clients ont réintégré leur maison.
Décloisonnement du couloir pour gain de lumière, ouverture et pose d’une verrière pour ouverture maximale des espaces et des vues, création d’une bibliothèque sur mesure.

La cuisine d’été aménagée dans l’ancienne cave. Une pièce ouverte sur le jardin pour profiter des beaux jours.

